門扉のあるクローズ外構デザイン。
アルミ門扉を取り付ける門柱のデザインは、門扉の両側に壁が付きます。左側の塗壁にジュエルグラスやサイン・ポスト・表札灯を取り付け、シンプルに縦ラインにハーフティンバーを取り付けた門柱です。
天然石貼りのアプローチ。
クローズされた門扉を開けて玄関に向かう通路の床は天然石を貼りました、門柱と玄関の間にはアルミのポールを建てて雰囲気を変えています。
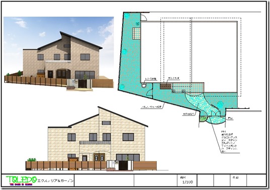
お洒落な物置・煉瓦積み立水栓。
建物の壁に付けるようにしてお洒落なカンナ物置を建てました、カンナも前勾配の屋根なので建物に付けても大丈夫です、物置の横にあった不凍栓に煉瓦を積んで立水栓にしました。
家を囲む目隠し樹脂板塀。
建物の回りの境界にアルミ柱を建て、樹脂板を貼り目隠しにしました。
クローズ外構の現場は上田市です。 もっと詳しく施工実績を見る。
