長野市 松本市 塩尻市 安曇野市 外構&ガーデンのプロショップ トレド エクステリア

長野 026-266-9522松本|塩尻 0263-31-0656 お問合せ ブログ Instagram Line
  • サイトマップ
  • リンク
長野市 松本市 塩尻市 安曇野市 外構&ガーデンのプロショップ トレド エクステリア
メニュー
  • TOP
  • 会社案内
  • 施工実績
    • トータル外構
    • リフォーム外構
    • プレミアム外構
    • 門柱・門まわり
    • アプローチ 駐車場
    • ライティング・照明
    • ガーデンルーム・テラス
    • ディーズガーデン
    • 目隠しフェンス
    • 癒やしの空間
    • 外構デザイン集
    • お客様の声
  • プレミアム外構
  • おすすめ商品
    • ガロック(浅間溶岩石)
    • ファイヤーサイド(FIRESIDE)
    • ディーズガーデン
    • ブラッドストーン
    • 表札
    • ガーデンルーム
    • 樹脂目隠しフェンス
    • カットダル
    • ポール
    • 水栓
    • カーポート
    • 軽量門柱
    • テコラ 破砕角丸瓦
  • 外構業者の評価
  • 外構工事価格
  • トレドの通販
  • よくある質問

高台の庭のリフォームデザイン。

トップページ > 外構デザイン集 > 高台の庭のリフォームデザイン。

高台の庭のリフォームデザイン。

2019-09-142019-09-14 by View all posts by toledo

Ri fu ~o ー mu de zain

高台の庭のリフォームガーデン。

 

Niwa no rifōmu 6132 Tsuboniwa-fū6135

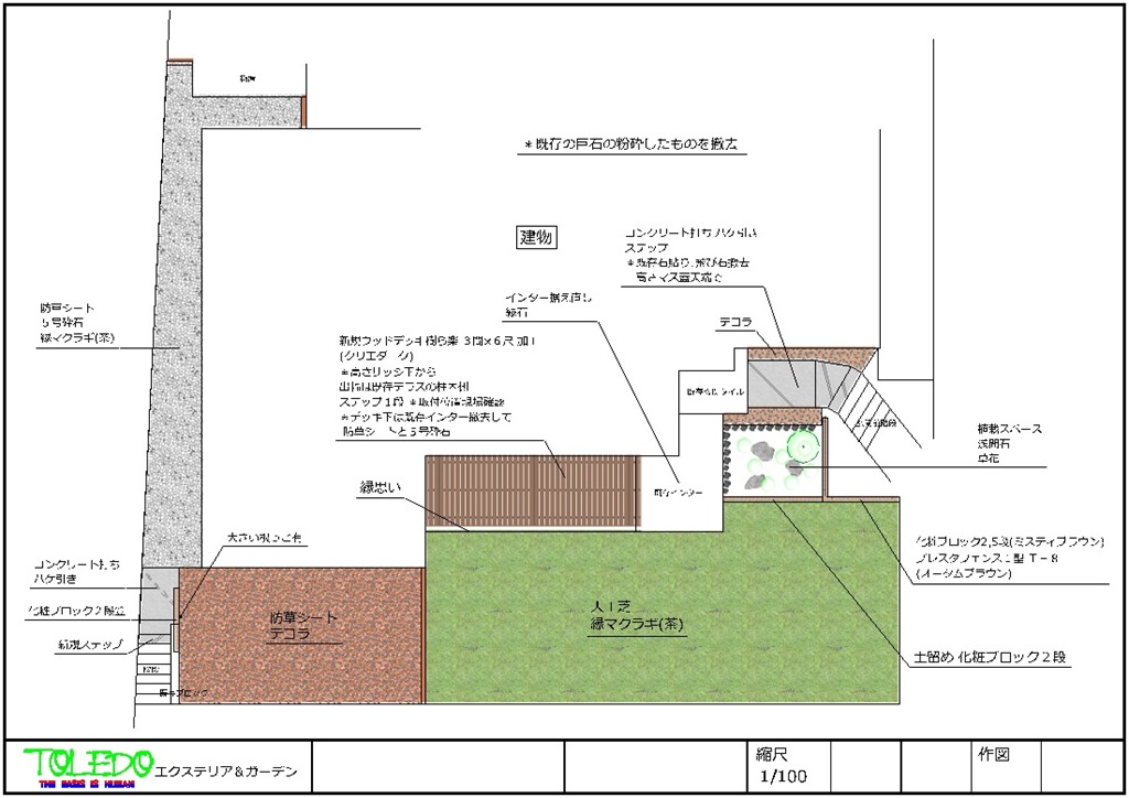
高台にある庭のリフォーム現場です、広めの庭の手入れが楽になるように、階段を上り詰めた一角に坪庭風に浅間石と植栽でスペースを萌家ました。

In 外構デザイン集   Tagged リフォームデザイン, 坪庭風   Bookmark the permalink.
・

Post navigation

← リリーに一目惚れ
手入れが楽になるように土の空間を減らしたエクステリアデザイン。 →

営業日

2025年 12月
日月火水木金土
30
1
2
3
4
5
6
7
8
9
10
11
12
13
14
15
16
17
18
19
20
21
22
23
24
25
26
27
28
29
30
31
1
2
3

休業日

トレド

営業時間 8:30~17:00(水曜定休)

長野店
 長野県長野市屋島2273-1
 TEL:026-266-9522

松本・塩尻店
 長野県塩尻市広丘野村2163 1F
 TEL 0263-31-0656

外構施工の流れ

お問い合わせ

メイン

  • お知らせ
  • こだわりのコンクリート
  • 確認申請のご案内
  • こだわりの植栽工事
  • 会社案内
  • 通信販売
  • 業者選び
  • 外構の価格
  • 動画
  • よくある質問
  • ●林業笠原造園株式会社
  • ●個人情報保護方針

施工例

  • トータル外構
  • リフォーム外構
  • プレミアム外構
  • 門柱・門まわり
  • アプローチ 駐車場
  • ライティング・照明
  • ガーデンルーム・テラス
  • ディーズガーデン
  • 目隠しフェンス
  • 癒やしの空間
  • 外構デザイン集
  • お客様の声

商品

  • おすすめ商品
  • ガロック(浅間溶岩石)
  • ファイヤーサイド(FIRESIDE)
  • ディーズガーデン
  • ブラッドストーン
  • 表札
  • ガーデンルーム
  • 樹脂目隠しフェンス
  • カットダル
  • ポール
  • カーポート
  • 水栓
  • 軽量門柱
  • テコラ 破砕角丸瓦
トレド 長野市 エクステリア・外構のプロショップ Copyright ©2025 TOLEDO Exterior NAGANO