可愛らしく作るエクステリアデザイン。

Exyerior Design

ディーズガーデンのエクステリアアイテムには可愛い商品がたくさんあり、門柱に・玄関前に庭にデイーズガーデンの商品を使用した外構デザインは中野市の現場です。

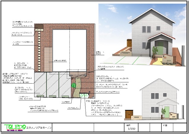
外構仕様内容

●門柱 ジョリパット塗仕上げ ディーズサインA-07・ミニオーナメント,ポストポーチF,表札灯リーフ,フラワータイル

●通路 スタンプコンクリートヨーロピアン,立ち上がり御影石二丁掛 

●駐車場 土間コンクリート打ち 目地クリスタルグレイン ボーダーアート片押し 

●庭 防草シートテコラ敷きこみ ブラッドストーン飛び石 カンナ物置D-70オレンジ

 

 

 

 

exteriorstandwashlilycanna monooki

 

*中野市の可愛い外構施工を詳しく見る。

可愛らしい洋風エクステリアデザイン。

YōfūEkusuteria dezain

建物に合わせて、可愛らしく洋風にエクステリアデザインをした長野市の現場です。  この現場の外構を詳しく見る。

仕様内容

●門柱 ジョリパット塗仕上げラフ・洋風瓦セレトルク・Rフィクスフェンス2型・表札灯フローラルA・ブラッドストーン角柱・アルミ70角ポール 

●アプローチ 天然石貼り(イエロー)・縁レンガ立てマフィンブリックオレンジ  

●駐車場 土間コンクリート打ち ・目地テコラ・一部人工芝貼り・ボーダーアート葡萄形押し色付け 

●300角タイル貼りテラス・屋根ココマオープンタイプテラス1.5間×6尺ホワイト+クリエラスク日訳ホワイト  

●庭  カンナ物置D-70オレンジ・ブラッドストーン直径4000ジロンデ3/4サークル・バイク庫イナバFXN2630SHアーバン  

●植栽 中木株立・シャラ・ヤマボウシ・イロハモミジ・アオハダ・オタフクナンテン・他下草・土壌会りょざい・保水材使用 

●エクステリア照明 LIXIL美彩スパイクスポットライトSSP-G1型45°・ローポールライトH-400丸形スパイク・トランス35w

レンガ門柱と樹脂し天然石を使った通路。

 Ekusuteria sekō jisseki Renga tsumi monchū

レンガ積みの門柱に「スタッコ-U」という、スペイン瓦をイメージしたポストと、アルミ鋳物の門扉

取り付けました。その横のRに積まれたレンガには、アルミ鋳物のフィックスフェンスを取り付けたり、

レンガの高さも変えています。

  Tsūro ten'nenseki hari& jushi hosō Tsūro ten'nenseki hari jushi hosō 01

道路側のアプローチの縁はレンガを立て、通路の縁取りは天然石を貼り、中側はファイバーレジンで、

天然石の小砂利を、洗い出しのイメージで施工しています。ファイバーレジンの樹脂は無黄変で

色が変わりづらく、接着力が抜群の商品です。

 Tsūro ten'nenseki hari jushi hosō 02 apurouti ten'nenseki hari jushi hosō

玄関側からと道路側から撮ったアプローチの写真です。ゆるやかな曲線を描きながら両側の緑の芝生、

イエローカラーの天然石、小豆色に近い天然石の小砂利のコントランスが綺麗です。

 Dea's garden  CannaForte D70 Dea's garden  CannaForte D70 monooki

二台分アルミカーポートの横の後ろ側スペースに、ディーズシェッド「カンナ物置」を建て、

手前の床スペースにはレンガを敷きこんでいます。

レンガ積の門柱・ファイバーレジンの通路・カンナ物置のエクステリア施工実績は千曲市の施工現場です。

ミニログハウスと家を繋げての外構工事。

 cannamonooki  roguhausu

駐車場にログハウスとカンナ物置のある風景

道路から下がっている敷地を上手く利用して、3台分の駐車スペースと、家の横にミニログハウスを建て、母屋と繋げました。駐車場の土間から直接ミニログの中に入れるようにして、手前横に道路から見えても見栄えのする、カンナ物置を設置し、その横にシンボルツリーを植え、花壇を設けました。何か所にも設置したLED照明の灯りで、夜も使い勝手の良い場所になりました。

 apurouti2 003 apurouti2 021 apurouti2 019

玄関に向かうアプローチ(通路)はステンシルのヨーロピアン

玄関に向かう通路部分のアプローチは、ステンシル(ペーパーコンクリート)です。コンクリート打設時にステンシル(形紙)模様の付いた型紙を敷き、上からハードナー(色粉)を撒いて仕上げていきます。模様は人気のヨーロピアンで、カラーは何色もあるのですが、テラコッタを使用しました。階段部分の立ち上がりは、レンガで縁取りをして仕上げています。

 エクステリア施工実績 terasu 2 001

物置を兼ねた自転車置き場にテラス囲い

駐車場からスロープを付け、自転車置き場と物置を兼ねて、テラス囲いに入れるようにしています。外側から見えにくい素材を使い、反対側からの出入りができるよう扉も付けました。床はコンクリート打ちにしているので、使い勝手も良いはずです。

 roguhausu roguhausu2 017

ミニログハウスの表側

駐車場からも出入りができますが、本来の入り口は反対側で、母屋からも出入りができるように施工しています。

 

 

Canna monook2 012raito roguhausukadan raito

20108.2 02420108.2 002raito roguhausu

当社が施工したエクステリア工事の須坂市の施工実績です。