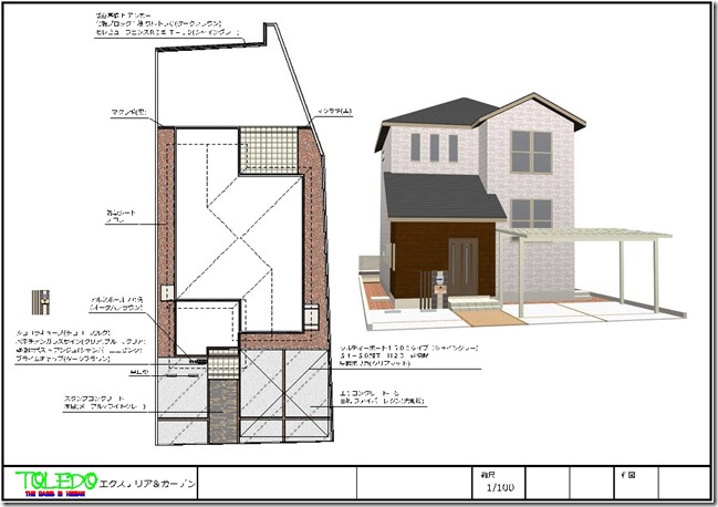
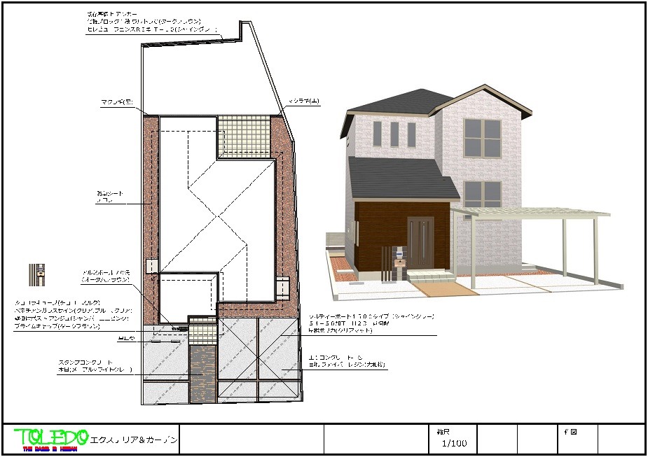
車を3台留めると、門柱の建場所があまりないのですが、玄関ポーチの横に煉瓦素材のショコラキューブを積み、お客様と一緒に制作したtoledoオリジナルのベネチアンガラスブロックサイン3段積みを取り付けました。お客様ご自身で作ったサインを取り付けたので思い出深い外構になったと思います。アプローチはスタンプコンクリートの木目で施工して積雪50㌢用のカーポートを設置、コンクリート目地を自然石小砂利で仕上げました。 門柱に車を当てないようにカーストッパーをコンクリートの床に設置しています。 長野市内の外構デザイン。
仕様内容 門柱-ショコラキューブ「煉瓦」ミルク・チョコの2色 天端-プライムキャップ「ダークブラウン」 サイン-手作りベネチアンガラスブロックサイン3段「クリア・ブルー・クリア」 ポスト-アンジュ「シャンパンピンク」デイーズガーデン 門柱横-アルミ70角ポール「オータムブラウン」
アプローチ-スタンプコンクリート「木目」 駐車場-ソルディーポート1500タイプH23「シャイングレー・屋根クリアマット」 コンクリート床の目地-ファイバーレジン「大和桜」 カーストッパー
南側基礎上-化粧ブロック積みウルトラC「ダークブラウン」 アルミフェンス「セレンビューR3型T-10「シャイングレー」 建物回り-防草シート「ES-150 1.4mm」 テコラ「破砕瓦能登」
