トレドで3Dキャドで作成したエクステリアデザイン(図面)です。実際に施工をさせて頂いた現場のデザイン図面を紹介します。 どんなに立派な家を建てても、その家にあった外構でなければ、なりません。素敵・綺麗だと思うだけでなく機能的にもすぐれ、そこで暮らしやすい事が大切です。トレドはそんな気持ちでデザインを考えています。
Y様邸のデザインは、建物に合わせて、モダンシンプルなデザインにして機能性も一緒にしたものです、門柱にはジュエルグラスを取り付け、アプローチはヨーロッパの石畳をイメージしたオリジナルのドリームストーンで仕上げ、門柱裏の空間にサークルを設けセンターにシンボルツリーを植えています、リビングの前には腰壁タイプのココマオープンテラスを取り付け、横の腰壁の無いココマを自転車置き場にしました、門柱・サークル・ココマに設置したLED照明が夜も素敵な庭を演出してくれます。ガーデンデザイン 千曲市のエクステリア施工現場です。
当社デザインした図面で施工した、ジュエルグラス門柱・ココマテラス腰壁タイプ、ドリームストーンのプローチの施工実績です。
S様邸は、リフォームの現場で今まであった塀は残し、塗壁にして仕上げ門柱はイメージを変えて曲線を描く門柱にアプローチも、駐車場から、庭からの流れも曲線を歩くようにしました。駐車場の後ろに作られたレンガのベンチにサークル、樹脂ポールもアクセントに使い全体を可愛らしく仕上げた現場です。 ガーデンデザイン長野市のエクステリア施工現場です。
デザインされた図面で施工した門柱・アプローチ・駐車場の実績です。
F様邸のデザインは、ディーズガーデン商品をたくさん使用した現場です。玄関から離れた場所に作られた門柱にジュエルグラス、門柱の後ろに立てられたカンナ物置、道路側には樹脂板のアルファウッドでリビングからの視線を遮るようにしました。庭には、クラピアを植えこんで管理の楽な庭に仕上げています。ガーデンデザイン 長野市のエクステリア施工現場です。
デザインされた図面で施工した門柱・おしゃれな物置カンナ・ライティングの施工実績です。
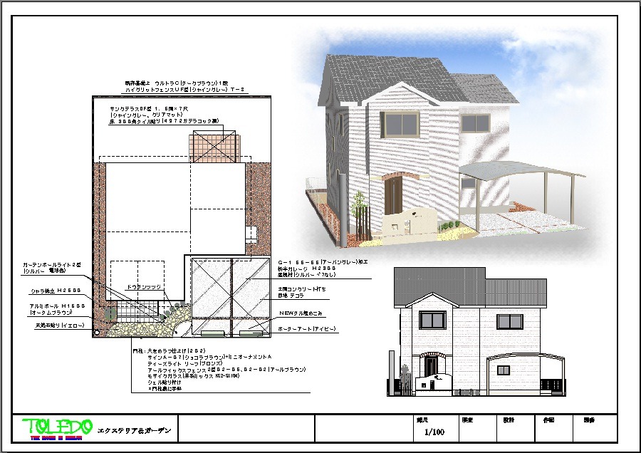
K様邸の現場は、既存のウッドデッキの交換で木樹脂デッキにしてその上にガーデンルームを設置しました。今までになかった門柱・アプローチを新設既存のカーポートの下のコンクリートの土間も新設しました。広い庭の管理が楽なように防草シートにテコラを敷きこみました。 ガーデンデザイン千曲市の現場です。
デザインされた図面で施工した門柱・天然石貼り・ガーデンルームの施工実績です。
N様邸は長い通路を天然石を貼った現場です。門柱は20?角のレンガをミルクカラーの中にチョコラーを縦に一列積みました。生垣を常緑のシルバープリペットで庭との境を囲いました。通路の両脇にLED照明を数カ所設置して安心して歩けるようにしています。 ガーデンデザイン
長野市の現場です。
N様邸のデザインは、北向きの玄関が建物中央にあるので、玄関の正面に少し高さのある塗壁の門柱を作りました。塗壁の中にはガラスブロックを縦に5個埋め込み、ハーフティンバーを貼りつけました。門柱に続く右側にはティンバーの角ホールを曲線に9本立て、左側手前に少し高さを低くしてスリットを入れた壁をRに作り、その間を天然石貼りの通路にしました。 ガーデンデザインの現場です。
S様邸の現場のデザインは、ジュエルグラスの取り付けられた門柱とアプローチの途中に作られたサークルです。どちらにもLED証明を取り付けて夜の庭を明るく照らしています。南側の隣地境界には、樹脂板で目隠し塀を施工しました。無機質のコンクリートの土間にはボーダーアートで形押しの模様を付けました。 ガーデンデザイン
長野市の外構施工現場です。
T様邸のデザインは、モダンシンブルな建物に合わせて、シンプルに作りました。表札は建物に取り付け、通路には天然石の方形を敷きこみ、駐車場のコンクリートには、斜めに目地を入れテコラ(破砕瓦)を入れています。そうする事でシンブルな中にもモダン的な感じになります。カーポートもシンプルモダンな建物に合うアーキフィット。
ガーデンデザイン長野市の外構現場です。
Y様邸の現場のデザインは、カンナ物置をひと目ぼれしたお客様の現場で、カンナ物置が道路から良く見える場所に設置して、門柱の中央にジュエルグラスを挟み込みました。サインが裏側からも見えるように取り付けられています。玄関までの曲線を描く通路は、コンクリートの打ちっ放しにカットダルを埋め込み、駐車場にボーダーアートで葡萄模様を付けています。 ガーデンデザイン
長野市の外構施工実績です。
K様邸のデザインは、新築の時に完成されていた庭を、ウッドデッキの付け替えから始まりました。デッキ部分は30?角の輸入タイルを貼り、アルファーウッド(樹脂板)で囲い扉も付け愛犬が遊べる空間にしました。右側の部分の庭も建物に合う様に少し変えさせていただきました。おしゃれな物置カンナキュートを置き、サークルにレンガベンチ、LED証明も数カ所取り付け夜のライトアップも素敵です。シンボルツリーにはアオハダの雌樹の株立を植えました。
ガーデンデザイン 長野市の外構現場です。
デザインされた図面施工されたカンナ物置キュートのある庭・タイル貼りテラス・目隠しアルファウッドの外構施工例です。
Y様の現場デザインは、敷地の中央の通路は砂利の樹脂舗装で、入り口にレンガの角柱を通路を挟んで両側に作り、車は4台スペースです。リビングの前の庭は洋風に、石貼りのテラスを作り、寛げるようにジュエルグラスの入った塗壁を作り、プライベート空間にしました。反対側の庭は和の庭です。 ガーデンデザイン
長野市の外構施工例です。
S様邸のデザインは、建物全面が駐車スペースになるので、レンガを埋め込み縁にして、通路と道路側をステンシルでヨーロピアンの模様にして、無機質なコンクリート部分にはレンガをポイントにして埋め込みました。部屋の前にはココマテラスの腰壁タイプにして、塗壁の門柱には、縦ラインにしてLEDバーを埋め込んでいます。ガーデンデザイン 長野市のエクステリア施工現場です。
デザインされた図面で施工された、門柱・ココマ腰壁テラス・ステンシルのアプローチ・駐車スペースの施工実績です。
M様の現場デザインは、和風の家に合うようにしました。又玄関と道路までの距離がないので、玄関正面に目隠しを兼ねた巾が広めの門柱を作りジュエルグラスと瓦のイメージのスリットレンガをはめ込みました。花壇も瓦レンガで作っています。道路側の生垣はサザンカを赤花・白花を交互に植えました。 ガーデンデザイン
デザインされた図面で施工した長野市の外構施工実績です。
S様邸の施工現場は、広い駐車場の中にアプローチを曲線を描いて作りました。玄関と直角に作られた塗壁門柱には細長いスリットを二ヵ所つくり横にポールを立てました。駐車場の土間コンクリートの床にはアクセントにレンガを埋め込んでいます。ガーデンデザイン 長野市の外構現場です。
K様の施工現場のデザインは、玄関の真正面に塗壁の門柱をR形にして、大小二ヵ所のスリットにはRフィックスフェンスを取り付けています。門柱の左右から入れるアプローチは天然石貼りで、駐車場の床にはボードーアートとカットダルで模様付けしています。南側にはウッドデッキの替りに、300角のタイル貼りの床にして、上にアルミテラスを設置しました。ガーデンデザイン 長野市のエクステリア施工現場です。
0様邸のデザインは、門柱と庭に続く部分にレンガを高さを変えながら、曲線を作りながら積み上げました。全面レンガでは無く、途中に間を開け、その後ろにはアルミポールを立てて目隠しにしています。天然石貼りの通路の玄関までの途中にサークルを作り、左右どちらからでも玄関に行けるようにしました。道路側の境界には、化粧ブロックとアルミ鋳物フェンスを取り付けました。 ガーデンデザイン 長野市のエクステリア施工現場です。
デザインされた図面で施工したレンガの門柱・塀・天然石貼り通路&サークル工事の施工実績です。
K様邸のデザインは、道路から敷地が高くなっているので、玄関に向かう西側面に、ジュエルグラスのある門柱を作り続いてアルミのポール塗壁アルミポール塗壁と続けました。通路はコンクリート打ちにしてカットダルを埋め込み縁にはボーダーアートで形押しをしています。駐車場と庭の境にはクリーンマクラギとコニファーで壁を作り、庭の側面に目隠し板(アルファーウッド)を高さ2m20?にしてプライベート空間を作っています。芝生の代わりにクラピアの庭です。 ガーデンデザイン 須坂市のエクステリア施工現場です。
デザインされた図面で施工した、門柱・アプローチ・目隠しフェンス・クラピアの施工実績です。
エクステリアデザインは、当社の施工が可能な範囲であれば、無料にて、作成させて頂いています。 お客様のエクステリアに対する考え方を聞かせて頂き、こちらのプロとしての考え方も参考にしてもらいながら現地調査の上にデザイン図面を作らせて頂きます。そのさい、建物の配置がわかる敷地の配置図・建物の間取りがわかる一階二階の平面図・建物を東西南北から見た立面図を用意していただくと助かります。 長野市・須坂市・中野市・千曲市・坂城町・上田市を中心に長野県東北信で仕事をしていますが、松本など中信地方でもご要望があれば仕事をさせていただいています。 遠慮なくお問い合わせ下さい。
