素敵・格好良いオリジナル門柱。

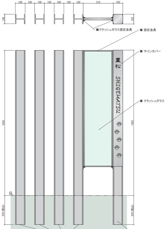
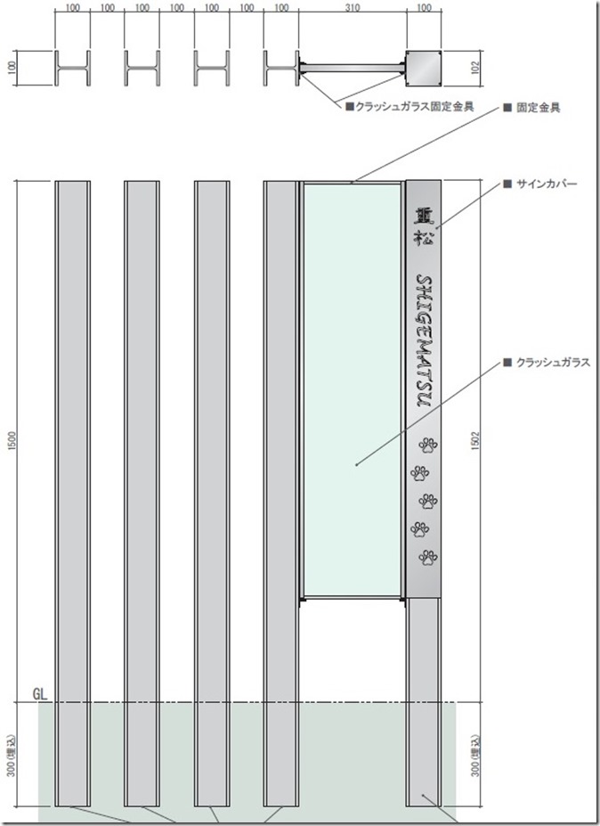
先日、外構工事が契約になった現場の門柱は、トレドオリジナルのアルミH鋼を使用して施工する門柱です。 シンプルモダンの建物が増えてきているので、現場調査に行き建物の外観を見た上でデザインの中にアルミH鋼にジュエルグラスを取付け表札も、オリジナルのH鋼に取付けが出来る伊尚サインです。 ワンちゃんを4匹飼っているので、サインの下に足型を5ケ入れました。 サインもまオンリーワンのサインです。

Orijinaru monchDezain

工事は、しばらく先になりますが、今から、完成が楽しみな現場です。 

SutekiKakkoīOrijinaru monch 1009  SutekiKakkoīOrijinaru monch642

H鋼+ジュエルグラスのオリジナル門柱の現場は何件もありますが、上の画像はその一部で、トレドがデザイン施工した外構現場です。

ShinpurumodanEkusuteria 5870

上の画像もトレドが施工したH鋼+ジュエルグラスの現場ですが。 今回決まった現場では、この画像と同じように門柱の上にLIXILプラスGのゲートを取付け、フレームに取付けられたLED照明が下を照らすようになります。H鋼のオリジナル門柱のサインには、リコストーンを入れガラスを張ったサインと鉄板を加工シテサインにする二通りの施工をしていますが、どちらもLED照明が中に組み込まれていて夜になると、また違った外構の様子を見せてくれます。 トレドの外構は、トレドだけのオリジナル商品・オリジナル施工があるので、素敵なエクステリアになります。