H鋼で作るジュエルスタンド

 

H鋼 ジュエル  H鋼材007

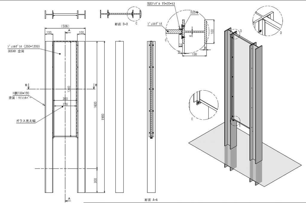
完成するのは、夏になると思いますが、H鋼にジュエルグラスを挟んで門柱にする現場が決まりました。H鋼の巾が10センチあり、両側に建ててジュエルグラスの30?を取り付けての門柱です。 H鋼材には塗装を施こしますが、今回の現場はサテンシルバーで仕上げます、H鋼の塗装はどんな色でもできますが、当社でお勧めするのはサテンシルバーか、特殊塗装の錆調になります。錆調は6色用意していますが、趣のある素敵な色です。 H鋼の左側には伊尚で表札を作りますレザーカットで文字を切り抜き、裏側にアクリル板を貼りLED照明を取り付けるので、夜間になったら点灯して名前が良くわかるようになります。 今回は、門柱の横にH鋼を後3本横に建てます。 長い通路の途中にH鋼を横に寝かせて足元灯も設置する予定です。 オリジナルエクステリアを望んでいるお客様は、当社に相談して頂ければ、他社には無いアイテムでオンリーワンエクステリを作る事が出来ると思います。 今現在H鋼を使用して施工する現場が5件契約になっています。

 

長野市のエクステリア専門店 toledo