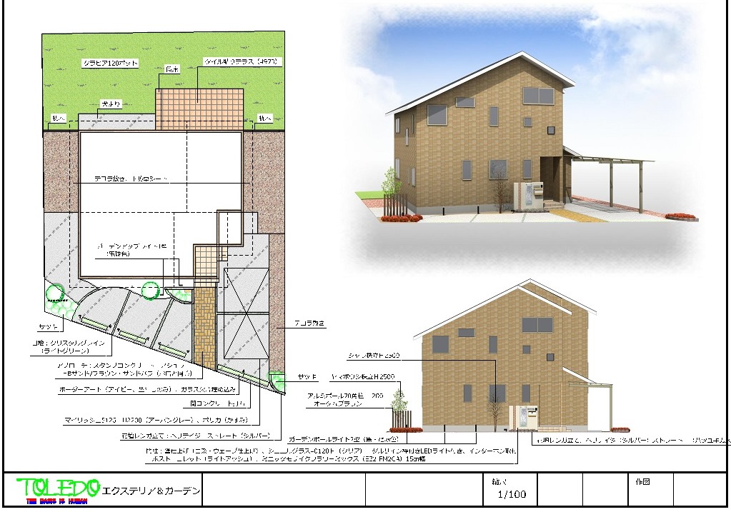
天然石でまとめた広々とした外構

こちらのお宅は駐車スペースをを広げつつ、左から植栽帯の荒倉ゴロタ、アプローチには火山岩のラバーズロック、土留めには浅間石。と既存お庭の雰囲気を壊さないよう天然石でまとめたリフォーム外構です。

先ずは既存のブロック塀、土留めを壊しながら土のスキ取りをしていきます。

残す部分は慎重に。

継ぎ足し継ぎ足しになってしまった古い土間コンクリートも一緒に撤去していきます。

すっきりしてきたところでアプローチ、土留めの浅間石を組んでいきます。

土留めが決まったらカーポート ソルディーポートを組み立てていきます。屋根の枠にはオプションのマテリアルカラー クリエモカを使用してカーポートが浮いてしまわないようにしました。

ここまで来たらいよいよ土間コンクリートの打設をしていきます。

門柱はYKKのルシアスウォールWD02型のショコラウォールを。

最後に植栽、スリットにファーバーレジン、ライトの取付けをして完成になります。

高木にはアオダモ、ソヨゴ、ツリバナを植えさせていただきました。

Before

After

こちらはライトアップの様子になります。

道路際のメインの樹木にはアップライト、門柱前には高さのあるローポールライト、アプローチの通路沿いにはグラスフロアライトを三カ所設置しました。

グラスフロアライトはガラスの内外両面にサンドブラスト加工を施してあるので通路を柔らかく照らしてくれます。

浅間石の下にはウォールバーライトを二カ所取り付けました。

横長のライトで浅間石の表情がしっかり浮かび上がって趣があります。

アプローチも兼ねて駐車スペースを広く確保し、元々のお庭の雰囲気を壊してしまわないように荒倉ゴロタや浅間石等、全体を天然石でまとめたリフォーム外構に仕上がりました。

駐車場の目地のいろいろなエクステリア施工方法

アプローチ・駐車場のコンクリートを打設する時に、巾10cmほどの目地(溝)を作ります。
コンクリートのひび割れ防止と言う事もありますが、目地を工夫して施工するとエクステリア工事全体が、それだけで違って素敵に見えてきます。
目地に化粧砂利を入れたり・タマリュウなどのグリーンを入れたりする事もありますが、当社ではオリジナル工法のウレタン繊維化樹脂で仕上げる工が多いです。

当社で施工しているテコラ(破砕瓦)・タマリュウ・レンガ・カットダル・クリスタルグレイン・人工芝の施工を紹介します。
また目地を施工することでコンクリートの床と平らになる事で使い勝手が良くなります。

目地ライン クリスタルグレイン無黄変ウレタン繊維化樹脂舗装

tyuusyajou meji Kurisutarugurein Raitoburu179 jinenseki kojari jusihosou 0101

クリステルグレイン(粉砕硝子)で施工したアプローチ・駐車場の目地の施工現場

空き瓶をリサイクルして粉砕して紙などの不純物を取り除いたクリスタレグレインハイを使用して施工しています。

chaashajo raitoburuu 073chuushajo meji jusihosoo Raitogurīn059chuushajo meji jusihosoo Raitogurīn1009Kurisutarugurein Raitogurīn2011

tyuusyajou meji Raitogurīn 0080chuushajo meji jusihosoo Raitogurīn001chaashajo meji013 (1280x853)mejirain raitogurin030

chuushajo meji jusihosoo Raitogurīn018chuushajo meji jusihosoo Raitogurīn8029mejirain Kurisutarugurein buru 14mejirain Kurisutarugurein Raitoburu6 018

chuushajo meji jusihosou buraun001渋沢様邸072chaashajo mej Raitogurīn020Konkurīto domaKakaku 1741

自然石小砂利を樹脂舗装で施工したアプローチ・駐車場の目地の施工現場

天然の小砂利を使用して落ち着いた感じに仕上げる事ができます。

chuushajo meji jusihosoo Raitogurīnjinenseki kojari jusihosou 032meji jinenseki kojari jusihosou011KonkurītoNoMejiJushi hosō 6174

jinenseki kojari jusihosou4057jinenseki kojari jusihosoujinenseki kojari jusihosou 008jinenseki kojari jusihosou002 (1024x681)

chuushajomeji jusihosou072jinenseki kojari jusihosou017jinenseki kojari jusihosou038meji jinenseki kojari jusihosou074

Sekisetsu-yōKāpōtoSOLDYPORT1500 6166chuushajo meji Yamato zaku-ra 037

アプローチ・駐車場の目地用の販売もしています。

uretan jusou Setto M10_P371_386_230POINTO

セット内容は無黄変ウレタン繊維化樹脂セット+クリスタルグレイン(ガラス)骨材)

●無黄変ウレタン繊維化樹脂セットはSサイズ(1.1㎡用) Mサイズ(2.2㎡用)があります。目地ラインで使用する時の量の目安は巾10cm深さ(厚み)10mmで計算してSサイズが約10㎡分・Mサイズが約20㎡分の施工が可能です。クリスタルグレイン(骨材)は一袋約10㎡分で計算します。

●無黄変ウレタン繊維化樹脂の無黄変とは黄色く変色し難いと言うことで、繊維化樹脂は液垂れがし難いので強度が強いということです、硝子は接着が難しい商品ですが、硝子でも綺麗に施工できるのが無黄変ウレタン繊維化樹脂です。

●クリスタルグレイは、空き瓶を粉砕して作られています、通常は粉砕するだけだと瓶に貼られていたシールなどか混ざってしまいますが、当社で使用しているクリスタルグレインは、シールを手作業でできる限り取り除いているので綺麗です。

クリスタルグレインセットの(骨材粉砕硝子+樹脂セット)

リサイクルで集められた色付瓶を粉砕して、無黄変繊維化樹脂で駐車場の目地を塗り込んでコンクリートの床高と同じ高さに仕上げるので、駐車場の使い勝手もとても良いです。クリスタルグレイン(粉砕硝子)の色はブルー・ライトブルー・グリーン・ライトグリーン・プラウン・クリアとあります。

10mセツト(無黄変ウレタン繊維化樹脂セットS+クリスタルグレイン1袋)

20mセット(無黄変ウレタン繊維化樹脂セットM+クリスタルグレイン2袋)

Kurisutarugurein buraun_055Kurisutarugurein buru_056Kurisutarugurein Raitoburu_057Kurisutarugurein gurīn _053Kurisutarugurein Raitogurīn 054

●ブラウン    ●ブルー     ●ライトブルー  ●グリーン    ●ライトグリーン

骨材が自然石+無黄変ウレタン繊維化樹脂舗装

10㎡セット(無黄変ウレタン繊維化樹脂セットS+骨材(自然石小砂利1袋)

20㎡セット(無黄変ウレタン繊維化樹脂セットM+骨材(自然石小砂利2袋)

自然石小砂利の骨材

sizeusekihosou yamatozakura 大和ざくらsizeusekihosou awazigoshoku 淡路五色sizeusekihosou keirin 桂林sizeusekihosou kairansek 海蘭石sizeusekihosou miyabi 雅 

●淡路五色   ●大和さくら    ●桂林    ●  海蘭石     ● 雅

施工方法は、クリスタルグレインと同じです。

クリスタルグレイン施工方法

uretan jusou Settojusihosou sekou① (1280x853)jusihosou sekou② (1280x853)jusihosou sekou③ (1280x853)

①はじめに溝の深さをモルタルで床面から10mm~15mm程度に施工しておきます。

②深さを調整した目地が乾いたら、下地のゴミを取り除きプライマーを塗ります。

③強化剤の缶に主剤を全量入れて全体が白濁するまで混合します。主剤を強化剤に入れる時に残らないように入れてください。

④骨材の中に良く混合されたウレタン樹脂を入れ、骨材が万遍なく濡れた状態になるまで混合します。

⑤プライマーが塗られている目地に混合されて骨材を入れていきます。

⑥駐車場のコンクリート床高と同じ高さになるようにコテで均していきます。

⑦作業が終了してから一日ほど養生をすれば、駐車場が使えるようになります。

作業のポイントは、コテを使用する時にバーナーで温めながら作業をするとコテに骨材が着きづらいので作業が楽です。

駐車場の目地を人工芝で、いつまでも綺麗なグリーン

人工芝を使った駐車場の目地は、タマリュウのような植物を使用した時よりも手入れが楽なうえグリーンの状態が長く続きます。
テコラなどの場合は、何かの理由で粒やかけらが駐車場に散らばってしまう場合もあり、やはりアクセントとも兼ねての人工芝がおすすめです

Hiroichuushajo 6513 Jinkōshibachuushajo meji 6516

Shokusai Okamesasa 6531 Jinkōshibachuushajo meji 6532 (1024x612)

駐車場のコンクリートを打設して固まると型枠を外します。 コンクリートの床の高さから人工芝の厚みの分を下げてコンクリートを打ち込み、乾いてか溝面にコーキングを塗り、人工芝を敷きこんでいきます。

テコラ(破砕瓦)を使用した駐車場目地

chuushajo meji tekora049Chushajo meji tekora035

テコラ(破砕瓦)は、瓦をリサイクルして砕き角を削ったものです、無機質のコンクリートの色が目地にテコラを入れるだけでも綺麗に見え、コスト的にも格安な為人気がありますが、子供達が喜んで遊びながらら目地から取り出してしまう事もあります。

テコラを使用した駐車場の施工例

Chushajo meji tekora021Chushajou meji tekor004chuushajo meji tekora3 014chuushajo meji tekora 026

Chushajo meji tekora 008Chushajo meji tekora90Chushajo meji tekora6043tyuusyaiou dezain1

Chushajo meji tekora 020目地11chuushajo meji tekora006chuushajo meji tekora

駐車場の目地にグリーンを入れる

Chushajo meji tamaryu51Chushajo meji tamaryu1

駐車場の目地にグリーン(タマリュウ)ヲ入れると明るい感じに仕上がります。 この場合はカーポートなど屋根が無い方が管理が楽です。 タマリュウは植物なので成長します、少し間隔を開けた植えた方がいいです、ポイントは溝の中に深植えしてタイヤにあまり踏まれない事です。

目地にタマリュウを入れた施工例

Chushajo meji tamaryu 006Chushajo meji tamaryu16Chushajo meji tamaryu3Chushajo meji tamaryu

Chushajo meji tamaryu106Chushajo meji tamaruu17Chushajo meji tamaruu10Chushajo meji tamaryu5

目地に煉瓦を埋め込む

ka-po-to024 (1280x852)chuushajo meji renga023 (1280x851)

Chushajo meji renga 002Chushajo meji renga 008

駐車場の目地にレンガを入れるは女性に人気が高いです。
煉瓦は吸水率の高い煉瓦もあるので商品を選んで施工することをお勧めします。

カットダルで駐車場の目地を作る当社だけの工法

Chushajo meji Kattodaru 037Chushajo meji Kattodaru 035

駐車場の目地を白セメントを使いカットダルを埋め込んだ現場です。 この工法は当社だけが出来る工法になります。

家に帰ってくるのが楽しみ

20年前家を購入した時、パナホームさんの紹介で外構をお願いしたのがトレドさんでした。

そんなご縁もあった事から今回もお願いしました。

ガス配管近くの大きな木の伐根は大変な作業だったと思います。

細かいところも丁寧に仕上げていただき、思った以上のステキな駐車場になりました。

作業中トラックの荷台にあった植栽(カルーナ)がかわいかったので、名前を教えていただき、後日買ってきて植えました。

アイビーでうもれて手入れしてなかった花壇が生まれ変わりました。

ご近所さんの評判も良く、家に帰ってくるのが楽しみになりました。

宮澤さん、スタッフの皆様ありがとうございました。

施工後
施工前
施工前

S型門柱でシンプル素敵エクステリア。

Ekusuteria sekōJisseki 035

シンプルですがR形門柱のインパクトが印象的な長野市の外構施工実績。 S型門柱に縦ラインのモザイクタイル、デイーズサインとミニオーナメント。

 

Autou~ōruMonchū 037 Autou~ōruMonchū 034 Mozaiku tairubari081

門柱は、アートウォールの半円をふたつ繋ぎS形にして高さも変えての門柱でS字の中に門柱花壇を作りLEDエクステリア照明を設置しました。S型門柱に縦ラインにしてモザイクタイルのブラックを貼り付けました。

 

Nagano-shi ekusuteria sekō jisseki chuushajo meji tekora0139

駐車場の建物前に高低差があり化粧ブロツクで土止めをして縁にれがを立て階段にして玄関まで行けるようにしました。 門柱の横にシンボルツリーのシャラの株立を植えました。広い駐車場のコンクリートはテコラの入った目地を工夫してデザインしました。

駐車場と通路を兼ねたエクステリアデザイン。

DesignExterior

道路から建物に向かって下がっている逆勾配の敷地のエクステリアデザインは、変形した敷地を上手く使用できるように、駐車スペースと通路を兼ねた土間コンクリートを打ち、通路部分をスタンプコンクリートの木目で施工しました。

Sutanpukonkurīto mokume tsūro

門柱の巾を広くして、曲線にしてスリットを2カ所作ったシンプルな門柱、門柱の横に樹脂の柱を7本立て手前にレンガを積み花壇にして植栽を植えこんでいます。

Monchū to renga hanada n

建物のまわりは、防草シートにテコラを敷きこみ、北側の道路境界には化粧ブロックを積んだ上に樹脂フェンスのマイティーウッドのホワイトを施工しました。

Tekora shiki komiMekakushi itabei

*上田市のエクステリア施工現場です。 駐車場と通路を兼ねたエクステリアデザインの外構。

ガラスとLED照明を使ったエクステリアデザイン。

DesignExterior

北向きの玄関と駐車スペースを見た目と使い易さを考えてエクステリアデザインしました。

Monchū juerugurasuRaitoappu monchū juerugurasu

門柱は、ジョリパットの塗仕上げで、門柱の中央にジュエルグラスのガラスパネルを入れています。 ポストはディーズガーデンのColette(コレット)のライトアッシュ色で、セキュリティーのダイヤル錠の付いた機能性に優れたポストです。サインはtoledoオリジナルのニューカットダルサインでステンレスの枠LED照明が取り付けられています。反対側の面にはミニッツモザイクフラワーミックスを縦ラインにして貼っています。門柱の前にはレンガを立てて花壇にして常緑のハツユキカズラを植えています。 外構工事では門柱が目立つのでいろいろ工夫しています。

 

OrijinarudarugarasusainReddo-tsuki no darugarasusain

ニューカットダルは14色あり、今回はグリーン系の3色グリーン・ライトグリーン・リーフグリーンを混ぜて施工ました。エクステリア施工の中で一番多く使われるサインは商品も豊富で迷ってしまいますが、オンリーワンのサインがあれば一番いいのではないでしょうか。DCトランスの働きで照明が点灯するとキラキラと綺麗にニューカットダルが輝きだします。

Ashura-gata no apurōchiMeji kurisutarugurein

玄関から道路までの通路部分はtoledoオリジナルのスタンプコンクリートアシュラの形押しでカラーを付けて仕上げています、通路サイド・駐車場の目地になる部分を粉砕ガラスのライトグリーンを樹脂で固めて塗りこんでいます。外構工事で粉砕ガラスを目地に施工できるのは当社だけです。目地を樹脂仕上げした現場は、コンクリートの床の高さと同じになるので、とても使て安いです。

夜になりLED照明が点灯するとジュエルグラスのガラスパネルが、ニューカットダルで作られたサインがキラキラと昼間とはひと味違うエクステリアを見せてくれます。門柱横のシンボルツリもアップライトで照らされ夜の暗闇の中で浮かび上がっています。 エクステリアデザインは少し工夫するだけでも全然違った現場が完成します。

*長野市内の施工現場です。  もっと詳しく施工実績

広い駐車場の新設4台用カーポート

Yonda iyouKāpōto6188

駐車スペースが宅延になっている為に、車の入れ替えも大変だった場所に、住宅の前の敷地に駐車場を作りました。 車を8台駐車しても余裕がある敷地の為、後ろ側は人工芝を敷きこみ管理が楽になるように施工しました。カーポートはリクシルのウィンスリーポートⅡ3000タイプ積雪100センチ用です。敷地が広かったので夜間でも使用しやすい様に、リクシルLED照明「美彩」ローボールライト三か所とアップライト、コンクリートの床に東洋工業のソーラーライト「クリペ」を埋め込みました。

JuerugurasuMonchū 6183 JuerugurasuMonchū 6182

宅延の奥に既存の門柱はありますが、道路側に新しくジュエルグラスの組み込まれた塗壁の門柱を新設しました。 宅延には既存の連棟式のアルミカーポートが残されています。門柱前の花壇には常緑のハツユキカズラを上後ろ側にはシンボルツリーを植えました。

JuerugurasuMonchū 6185 Deas sign&Hyōsatsu-tō 6187

門柱を裏側から見ると南向きに立つ門柱のジュエルグラスが太陽光でキラキラと輝いています、塗壁にはハーフティンバーで細い縦ラインを付け、ディーズガーデンの葉っぱの形をした表札灯、アルミ鋳物サインと横にミニオーナメントを取り付けました。

Jinkōshiba 6104 (1024x649)Rikosutōn6191Rikosutōn6192

駐車場の後ろ側は敷地が50センチ程高くなっているので、SBブロックで土止めをして、巾4メートルで長さが13メートルの防草シート敷いた上に人工芝を敷きこみました。コンクリートの床とSBブロックとの間の隙間にリコストーン(硝子玉)を入れ、LEDテープが点灯して階段を登りやすく施工しました。

RifōmuMae 0219 (1024x768)RifōmuMae0216

工事を始める前に家が建っていたので、解体後に地盤を下げました。

庭のリフォームで手入れが楽に使いやすくした外構デザイン。

Niwa no rifōmuekusuteria dezain

庭のリフォーム・エクステリアデザイン。

 

Niwa no rifōmu Chūshajō no rifōmu

庭にあった植木を移動して土止めにレンガを積みブラッドストーンのサークルを敷き詰めリビング前に木樹脂デッキの樹ら楽を設置直接庭に降りられるようにデザインをしました。庭と駐車場との堺にマドックZで縁を作り玄関横にスタンドウォッシュリリーを設置、手前の既存門柱・伸縮門扉は残しカーポートを積雪様で新しく取り付けました。

*須坂市の外構現場です。 詳しくは施工実績のリフォーム。

グレーカラーのエクステリアデザイン例。

DesignExterior

車を7台ほど、駐車できる広い敷地のエクステリアデザインは、建物に合わせてシンプルにグレーカラーを使用したエクステリアの現場です。建物が黒と白のモノトーンでシンプルで落ち着いた感じだったので、門柱に気を使いました。広い駐車場は車を何台も駐車できるので広い敷地はカーポートの他は、立てられる物が少ないのですが、だからこそ余計に門柱に目が行きます。

 

puremiamu hckou monchu

H鋼をサテンシルバーで塗装してジュエルグラスのカラーグレーを挟み込みました。H鋼のポールも2本別に立てましたが、その間にスリムな塗り壁を作り黒のタイルを縦ラインにして貼り、全体で門柱になっています、表札は、H鋼本体にレザーカットで文字をくり抜き、裏側からアクリル板を貼り文字が見えやすくしています。また、LEDテープを取り付けているので夜になると、点灯し、また違った感じに見えてきます。

 

SutanpukonkurītoapurōchiKurisutarugurein no meji

道路から玄関まで続く通路はスタンプコンクリートのアシュラ模様をライトグレーカラーで仕上げ、広い土間コンクリートの目地は、自然石のグレーカラーの砂利をウレタン樹脂で舗装しました。当社が使用するウレタン樹脂は駐車場でしようしても大丈夫です。 モノトーンで仕上げるエクステリアのアイテムもいろいろ用意しています。

*飯綱町の外構施工現場です。 エクステリア施工実績を見る。